News and Events
Promoting Outdoor Activity at the Center
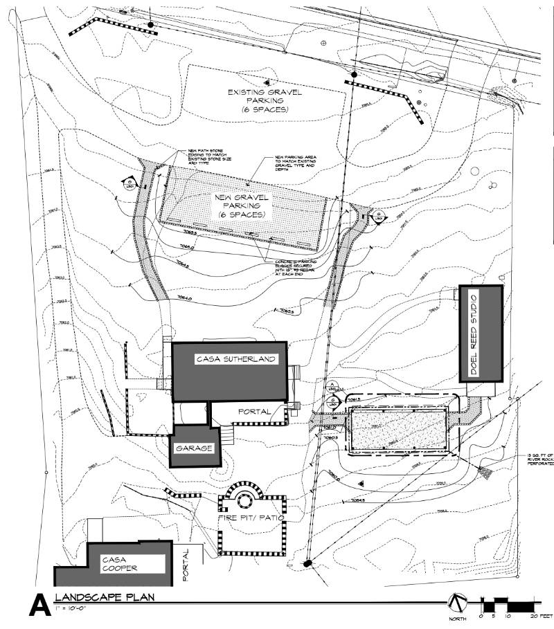
The Ramada Project

The Doel Reed Center in Taos is a hub for creativity in teaching, research, and outreach. The Center extends Martha Reed’s vision of a thriving educational community that is befitting of her father's work and legacy. Doel Reed helped establish Oklahoma State University’s Department of Art and directed it until he retired in 1959. The art community recognizes him as the master of the aquatint, and many of the world's most prestigious museums still feature his aquatints, oil paintings, and drawings. After he retired, he moved to his property in Taos, the property that Martha then donated to OSU before she passed away in 2010.
Supporters of the Center, OSU students, and life-long learners explore diverse topics in this art mecca. Dr. Carol Moder, director of the Center, compares the studying experience at the Center to studying abroad because of how profoundly this experience has impacted over 100 OSU students by immersing them in such a unique culture and geographic area. The Center also creates a partnership with the Taos community, fostering collaboration that will meet the educational needs of both OSU and the region while stimulating the local economy. The Center also attracts visiting artists and scholars to produce original works, teach seminars, and collaborate with creative minds. As Martha Reed provided the Center with property endowment and the seed money to maintain the facilities, the Center continues to grow to fulfill its land-grant mission.
The Doel Reed Center Ramada project, which will expand our outdoor classroom and gathering space, is progressing, thanks to the many generous donors who have contributed to the renovation and property fund. Though the costs of the project will deplete our currently available property support funds, we hope to move forward with construction this summer. We also propose to expand our onsite parking to better accommodate class participants.
We have nearly reached our $75,000 fundraising goal for the highly anticipated ramada. The outdoor pavilion and gathering space will beautifully frame the spectacular and panoramic views of Taos and allow students to create their art outdoors. By establishing and growing the Center, OSU exhibits its commitment to fulfilling its mission through community partnership, developing innovative educational opportunities available to all, and significantly advancing the arts and humanities.
Please help us continue to maintain and improve the Doel Reed Center property by donating to the Doel Reed Center Property Renovations Fund #20-40650 through the Doel Reed Center’sdonation page. If you wish to make a contribution, you can also contact Deb Engle at 405-385-5600 or dengle@OSUgiving.com.